Viel Tageslicht

Unsere Räume

Barrierefreie
Tagungsräume

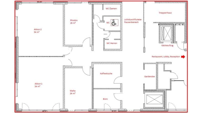
Das Hotel INCLUDiO in Regensburg ist Ihre perfekte Location für barrierefreies Tagen. Für Veranstaltungen mit bis zu 120 Personen können vier Tagungsräume mit je 26 qm bzw. 54 qm gebucht werden. Alle Räume haben Tageslicht, sind verdunkelbar und mit modernster Medientechnik ausgestattet. Über eine steuerbare Klimaanlage lässt sich die gewünschte Raumtemperatur individuell regeln. Der großzügige Pausenbereich steht exklusiv den Tagungsgästen zur Verfügung und wird auch für Empfänge oder ein lockeres Get-together genutzt.

Tagungsraum Rhodos - klein Tagungsraum Rhodos

Rhodos

Der Raum ist 26 qm groß, klimatisiert und durch das Tageslicht schön hell. Zur Ausstattung gehört ein interaktiver Galneoscreen.

Raum Malta - klein Tagungsraum Malta - klein Grundriss Tagungsbereich

Malta

Der Raum ist 26 qm groß, klimatisiert und durch das Tageslicht schön hell. Der interaktive Galneoscreen ist mit Videokamera und Soundbar ausgestattet und ermöglicht so die Durchführung von Videokonferenzen.

Akkon 1-2 Akkon Raum Akkon groß Grundriss Tagungsbereich

Akkon 1 + 2

Der lichtdurchflutete Raum (2 x 54 qm) verfügt über einen Ausgang nach draußen. In jedem Raum befinden sich eine Leinwand und ein Deckenbeamer, zudem gibt es Induktionsschleifen im Fußboden. Für kleine Gruppen ist der Raum in der Mitte teilbar.

Kontakt

Barrierefreie Tagungsräume jetzt buchen

Sichern Sie sich für Ihr Seminar oder Ihr Businessevent den passenden Raum in unserem komplett barrierefreien Hotel in Regensburg. Ihre Gäste genießen nicht nur eine moderne Ausstattung, sondern auch eine abgestimmte Tagesverpflegung sowie ein bequemes Übernachtungsangebot. Wählen Sie aus verschiedenen Tagespauschalen ein entsprechendes Paket aus.

Ansprechperson für Tagungsanfragen:
Marianne Kühnert
Tel. 0941 788 328 0
E‑Mail: tagung.includio@johanniter.de

Geschäftsleute sitzen an einem Tagungstisch
Was beinhaltet die Standard­technik?
  • 1 Flipchart
  • 1 Pinnwand
  • 1 Moderationskoffer
  • 1 Deckenbeamer (Raum Akkon 1 + 2)
  • 1 Leinwand (Raum Akkon 1 + 2)
  • 1 Galneoscreen (Raum Malta oder Raum Rhodos)
➔ Häufigste Fragen anzeigen